$1,312,000 for Sale
1875 lansing, charlotte, MI 48813
Property Description
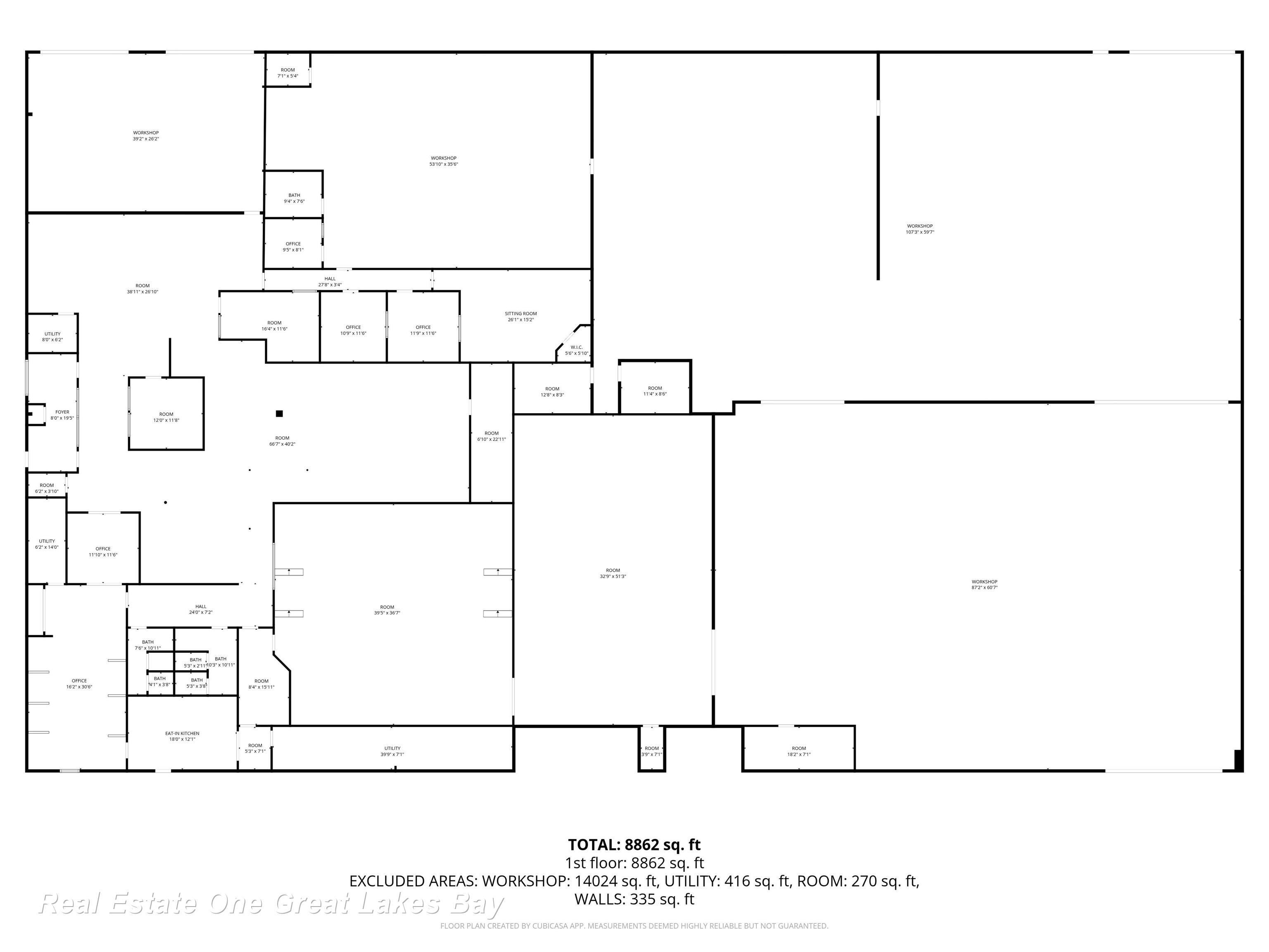
Well-maintained Office/Warehouse facility situated on 2.81 partially fenced acres, offering over 24,000 sq. ft. of versatile commercial space in a high-traffic location near major highways. Building is a clear-span structure with no interior support columns, allowing maximum flexibility for shelving, custom build outs, and forklift traffic. The office area features 6 private offices, a training/auditorium room, large showroom, kitchen, call center with 6 cubicles, and 2 restrooms. The warehouse includes 1 office, 1 restroom, 16-foot ceilings and four overhead doors: (2) 12?x11?, (1) 17?x9?, and (1) 12?x12?, allowing for efficient loading, storage and operations. Additional highlights include an income-producing billboard facing I-69, two 36?x24? lean-to structures for outdoor storage, ample 3-phase power, outdoor signage out front, lighting, and security camera system. Ideal for owner-users or investors seeking a turnkey commercial property with excellent visibility and room to grow.
General Information
Sale Price: $1,312,000
Price/SqFt: $54
Status: Active
MLS#: 50198595
City: eaton twp
Post Office: charlotte
County: Eaton
Acres: 2.8
Lot Dim: Irregular
Size: 24,200 sq.ft.
Acreage: 2.8 est.
Year Built: 1989
Property Type: Commercial/Industrial
Tax, Fees & Legal
Est. Summer Taxes: $1,749
Est. Winter Taxes: $5,704

Listing Courtesy of: Wendy Schmitz of Real Estate One Great Lakes Bay
Information provided by Saginaw Board of REALTORS
®
Listing information provided courtesy of the Saginaw Board of REALTORS
®. IDX information is provided exclusively for consumers' personal, non-commercial use, and it may not be used for any purpose other than to identify prospective properties consumers may be interested in purchasing. The data is deemed reliable, but is not guaranteed accurate by the MLS.
This listing last updated: Mon, February 02, 2026 at 12:23:12 PM EST
SBR Listing Data Last Updated on Thu, February 12 2026 at 12:08pm